Boarea: 119 m²

|

Antal rum: 5

4 495 000 SEK

Rindövägen 86B

Rindö

 - 

Vaxholm

Information

Pris

4 495 000 KR

Boarea

119 m²

Rum

5

Pris/KVM

37 773 KR

Avgift

6 433 kr/mån

Mäklare

Mattias Lindqvist

Reg. Fastighetsmäklare / Partner

Danderyd

Mattias Lindqvist

Visning

KONTAKTA FASTIGHETSMÄKLAREN FÖR VISNINGSTID.

Beskrivning

Radhus i toppskick

ERBJUDANDE! Om du tillträder senast 31 december bjuder vi på 6 månader avgiftsfritt! Båtplats finns att tillgå nere i den mycket skyddade hamnen.

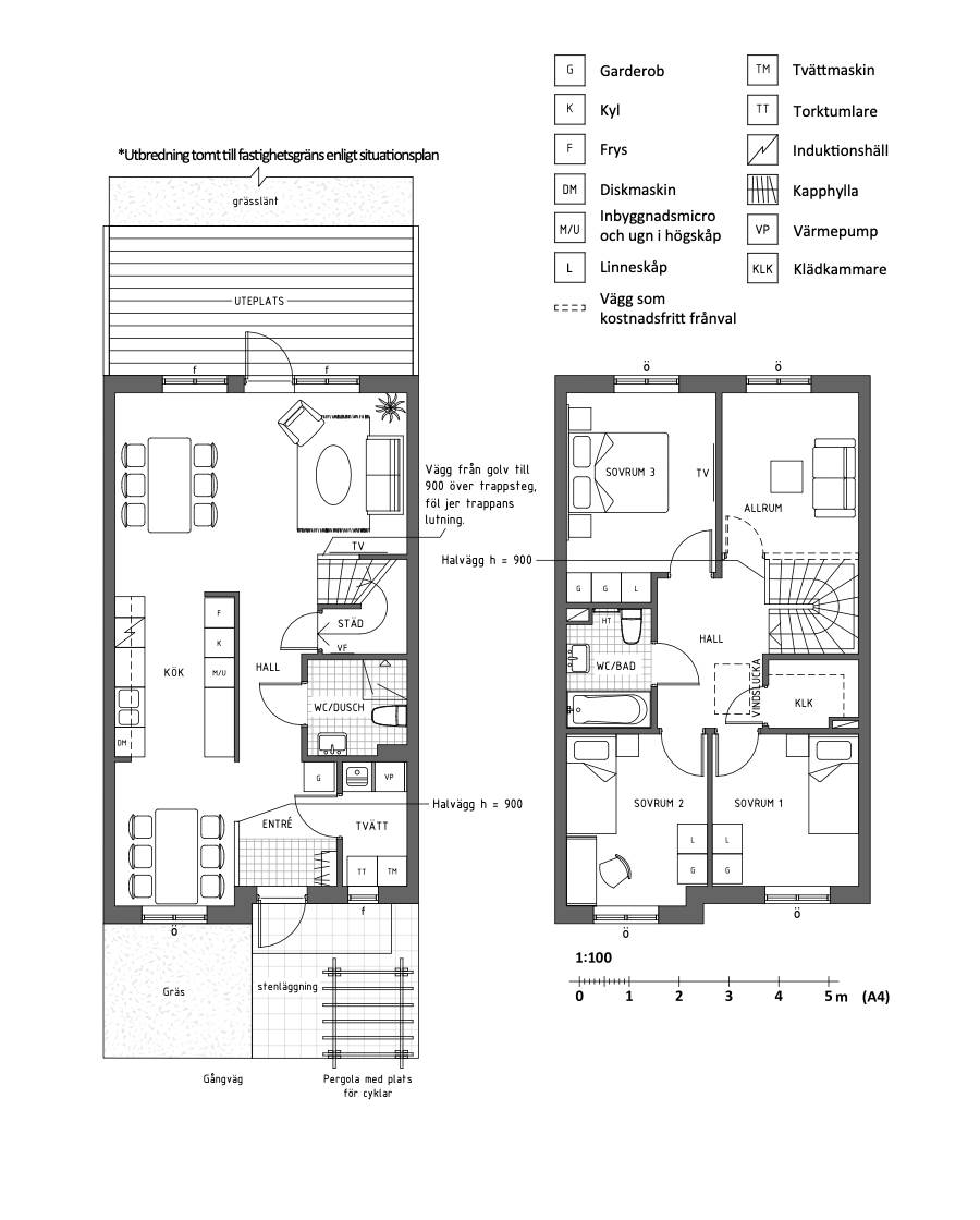
Välkommen till ett mycket tilltalande och ljust radhus om 119 kvm i Rindö Hamn. Huset är nybyggt i två plan och har en optimal disposition. Entréplan med välkomnande hall, helkaklat badrum och praktisk separat tvättstuga. Stilrent kök med matplats och öppen planlösning. Vardagsrummet är mycket tilltalande med stora glaspartier ut mot terrassen som är insynsskyddad och vetter mot grönområde. Vattenburen golvvärme i hela entréplanet. På husets övre plan finns idag 3 sovrum och ett allrum, perfekt som tv-rum. Helkaklat badrum med badkar och ett praktiskt förråd. Till huset hör en parkeringsplats som går att komplettera med laddstolpe. Sammantaget ett tilltalande och bekymmerslöst boende i attraktiva Rindö Hamn.

Rindö Hamn är en riktig skärgårdsidyll. Nere vid båthamnen finns Ostmakeriet, ölbryggeri och kafferosteri. På restaurangen Syrran & Jag kan du äta en god lunch eller middag. Det finns även kontorshotell och Rindö Hamn Bed and Breakfast. Båthamnen i sig är mycket populär och skyddad från vind.

För den aktiva finns den lokala idrottsföreningen Ka1if. Det finns även ett nybyggt gym(Fysio+) samt tennisbana på området. Man kan också börja dagen på utegymmet för att sedan ta ett dopp från den fina badbryggan som ligger intill.

Det finns även en populär skola på området för årskurs f-6.

Område

Allmänt om området

Rindö har ett strategiskt läge med två vägar in till Stockholm: norra vägen är det 36 kilometer till Roslagstull, södra vägen är det 40 kilometer till Danvikstull. Arlanda nås på en timme med bil.
Från Rindö Hamn är det bara sex kilometer till Vaxholm, ”skärgårdens huvudstad”.

Naturligtvis är Vaxholmsbåtarna också ett attraktivt färdmedel, särskilt sommartid. De går till och från Grenadjärbryggan. Vill du åka kommunalt kan du ta buss 688 till Vaxholm och vidare mot Stockholm. Ett annat alternativ är att åka färjan över till Stenslätten och ta buss 439 mot Slussen.

Fr o m 2020 finns en ny pendelbåtslinje (83) som trafikerar sträckan Rindö-Vaxholm-Lidingö-Nacka-Stockholm/Strömkajen (och omvänt). Den turen kommer att ta 60-75 min och kommer att ha sex avgångar/dag; tre på morgonen, en vid lunch och två under eftermiddagen.

Närservice

I Rindö Hamn behöver du inte välja mellan en aktiv fritid eller ett bra boende. Här fi­nns både och – på pendlingsavstånd till Stockholm och på randen till Stockholms underbara mellan- och ytterskärgård.

Den fina skyddade hamnen är den naturliga samlingsplatsen. Här sjuder det av liv, särskilt sommar­­tid. Sommaren 2016 öppnade den nybyggda hamnrestaurangen Syrran och Jag där man både kan äta gott och handla något från deras butik.

På Rindö erbjuds både privat och kommunal service. I Rindö Hamn ­finns bland annat grundskola upp till årskurs sex. Vaxholm nås med bil på 15 minuter och Stockholms city på 45 minuter. Som alternativ finns SL-Buss och vår, sommar och höst även Vaxholmsbolaget som trafikerar Grenadjärsbryggan – Stockholms city.

Utöver basservice, som ger trygghet och stabilitet, ­finns mycket annat som förgyller vardagen. Som Fysio+ med gym och ett brett utbud av friskvård. Sugen på mer robust och naturnära träning? Testa utegymmet, mellan hamnen och Grenadjär­bryggan, efter en runda i det elljusbelysta motions­spåret. Spela en tennismatch på områdets utomhusbana. Eller hyr en kajak på Kajak­centret Vaxholms Brygghus och gör en utflykt på havet.

Restaurangen Syrran och jag är mycket populär och sedan kan det smaka gott med något från Ostmakeriet – café och försäljning av egentillverkad ost – eller njuta av en öl från Waxholms bryggeri, Rindö Hamns eget mikrobryggeri.

Fakta

Basinformation

Nyproduktion:

1

Boarea:

119 KVM

Areakälla:

ekonomisk plan

Lägenhetsnummer:

7

Avgift:

6 433 kr/mån

Ingår i avgiften:

exkl värme och VA. Bredband tillkommer med 160 kr/mån. Förbrukning kallvatten tillkommer. Se ekonomiska planen.

Upplåtelseform:

Bostadsrätt

Kommun:

Vaxholm

Område:

Rindö

Gatuadress:

Rindövägen 86B

Postnummer:

18541

Postort:

VAXHOLM

Interiört

Antal rum:

5

Antal sovrum:

3

TV och Bredband

Bredband:

Fiber

Byggnad

Typ av byggnad:

2-plans radhus

Byggnadsår:

2023

Uppvärmning:

Vattenburen via Frånluftsvärme pump

Övriga byggnader:

Separat förråd finns på gaveln

Ventilation

Typ av ventilation:

Mekanisk (endast frånluft)

Energideklaration

Energiklass:

None

Våning/hiss

Hiss:

Nej

Andelstal/reparationsfond

Andel i förening:

11.11 %

Indirekt nettoskuldsättning:

1 444 000 KR

Föreningen

Om Brf Grenadjärsbacken

Föreningen består av 9 radhus om ca 120 kvm vardera

Karta

Rindövägen 86B - 18541 VAXHOLM

Karta

Låt oss värdera ditt hem kostnadsfritt

boka fri värdering
Fri värdering

Danderyd

Linköping

Norrtälje

Nyproduktion

Täby

Danderyd

Linköping

Norrtälje

Nyproduktion

Täby